Κτίριο κατοικιών στο Πανόραμα Θεσσαλονίκης
Το κτίριο κατοικιών βρίσκεται σε ένα καταπράσινο, επικλινές και διαμπερές οικόπεδο, δυτικού προσανατολισμού, με θέα προς την πόλη της Θεσσαλονίκης και τη θάλασσα του Θερμαϊκού Κόλπου.
Ο αρχιτεκτονικός σχεδιασμός ακολούθησε τις φυσικές κλίσεις του εδάφους, δίνοντας έμφαση στο φυσικό φωτισμό και τη λειτουργικότητα. Στις εξωτερικές επιφάνειες χρησιμοποιήθηκαν σύγχρονα υλικά όπως ξύλο, γυαλί και μπετόν, σε αρμονία με τον περιβάλλοντα χώρο. Η πρόσβαση στον υπόγειο χώρο στάθμευσης γίνεται από την οδό Κων/νου Παλαιολόγου, ενώ στην οδό Νίκης δημιουργείται μία δεύτερη είσοδος που οδηγεί σε αίθριο με το κεντρικό κλιμακοστάσιο.
Ο ενεργειακός σχεδιασμός των κατοικιών έγινε με βασικό κριτήριο την οικονομία και την υψηλή απόδοση. Τοποθετήθηκαν αντλίες θερμότητας (ψύξης - θέρμανσης), ενεργειακά τζάκια και ειδικά θερμοδιακοπτόμενα κουφώματα για ελαχιστοποίηση των απωλειών θερμότητας.
Τοποθεσία
Το κτίριο κατοικιών βρίσκεται στο Νόμο 751 στο Πανόραμα, μία περιοχή εύκολα προσβάσιμη με αυτοκίνητο και αστική συγκοινωνία από και προς τον κεντρικό δρόμο Θεσσαλονίκης-Πανοράματος. Διαθέτει πολύ πράσινο, ελευθέρους χώρους, πάρκα, θέα προς την πόλη και τη θάλασσα. Σε κοντινή απόσταση βρίσκεται ο οικισμός του Πανοράματος με πλήρες εμπορικό κέντρο και παροχή υπηρεσιών.
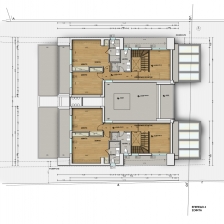
Διώροφη μεζονέτα 3ου και 4ου ορόφου
- Αναπτύσσεται στους δύο τελευταίους ορόφους του κτιρίου.
- Είσοδος από το 3ο επίπεδο σε επιφάνεια 85 τ.μ. που περιλαμβάνει κουζίνα, WC και εννιαίο χώρο με υποδοχή, σαλόνι, τραπεζαρία και ενεργειακό τζάκι.
- Σαλόνι που ανοίγει σε βεράντα 20 τ.μ. με θέα προς τη θάλασσα.
- Εσωτερική σκάλα οδηγεί στο 4ο επίπεδο όπου βρίσκονται 3 υπνοδωμάτια και 2 μπάνια (1 en suite). Τα 2 υπνοδωμάτια βγαίνουν σε βεράντα 10 τ.μ με θέα προς τη θάλασσα.
- Παρέχεται η δυνατότητα επιλογής υλικών δαπέδου από μεγάλη ποικιλία και κατά παραγγελία σχεδιασμού της κουζίνας και των ντουλαπών.
Διώροφη μεζονέτα με κήπο και πισίνα
- Αναπτύσσεται στο ισόγειο και τον 1ο όροφο του κτιρίου.
- Είσοδος από το κεντρικό κλιμακοστάσιο στο 1ο επίπεδο επιφάνειας 95 τ.μ, που περιλαμβάνει εννιαίο χώρο με σαλόνι, κουζίνα, τραπεζαρία και ενεργειακό τζάκι, καθώς επίσης 1 υπνοδωμάτιο και μπάνιο.
- Σαλόνι που οδηγεί σε βεράντα 20 τ.μ. με άμεση πρόσβαση σε ιδιωτική αυλή με πισίνα.
- Εσωτερική σκάλα οδηγεί στο ισόγειο όπου βρίσκονται 3 υπνοδωμάτια και 2 μπάνια (1 en suite). Πρόσβαση στην ιδιωτική αυλή γίνεται και από το ισόγειο.
- Παρέχεται η δυνατότητα επιλογής υλικών δαπέδου από μεγάλη ποικιλία και κατά παραγγελία σχεδιασμού της κουζίνας και των ντουλαπών.
Διαμέρισμα 2ου ορόφου (sold)
- Διαμέρισμα με 3 υπνοδωμάτια, μπάνιο και WC.
- Εννιαίος χώρος 85 τ.μ. με σαλόνι, κουζίνα, τραπεζαρία και ενεργειακό τζάκι.
- Σαλόνι που ανοίγει σε βεράντα 20 τ.μ. με θέα προς τη θάλασσα.
- Άπλετο φυσικό φως σε όλους τους χώρους.
- Δημιουργία ηλιακού χώρου που λειτουργεί βιοκλιματικά θερμαίνοντας παθητικά την κατοικία.
- Παρέχεται η δυνατότητα επιλογής υλικών δαπέδου από μεγάλη ποικιλία και κατά παραγγελία σχεδιασμού της κουζίνας και των ντουλαπών.























