Residential building in Thessaloniki
Project under construction.
The residential building is located in a green area on a south-west facing slope with views to the city of Thessaloniki and the Thermaic Gulf.
The architectural design of the buildings follows the contours of the slope, emphasizing in natural light and functionality. The external surfaces make use of modern materials such as wood, glass and concrete, creating harmony with the surrounding environment. Access to the underground parking is from Konstantinou Palaiologou Str., while in Nikis Str. there is a second entrance leading to a patio with the central staircase and the elevator.
The energy efficiency design of the residences was based on the principles of cost savings and high performance. Heat pumps and special energy windows were installed to minimize heat cost.
Location
The residential building is located in Nomos 751 District in Panorama, an area easily accessible by car and public transportation to and from the main Thessaloniki-Panorama road. This is an area with lots of green, open spaces, parks, overlooking the city and the sea. Nearby is located the village of Panorama, with its full range of shops and services.
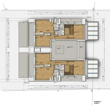
Two-storey maisonette on the 3rd and 4th floor
- The maisonette is situated on the 3rd and 4th floor of the building.
- Entrance from the 3rd floor to a level of 85m² which includes kitchen, WC and open plan area with living room, dining room and energy-efficient fireplace.
- Living room opening to a terrace of 20m² with sea view.
- An internal staircase leads to the upper level where 3 bedrooms and 2 bathrooms (1 en suite) are located. The 2 bedrooms have access to a terrace of 10m² overlooking the sea.
- Choice of a wide variety of flooring materials and custom design of kitchen and closets.
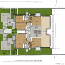
Two-storey maisonette with garden and pool
- The maisonette is situated on the ground floor and first floor of the building.
- Entrance from the central staircase to the upper level of 95m², which includes an open plan area with living room, kitchen, dining room and energy-efficient fireplace, as well as a bedroom and a bathroom.
- Living room leading to a terrace of 20m² with direct access to private courtyard with pool.
- An internal staircase leads to the ground floor where 3 bedrooms and 2 bathrooms (1 en suite) are located. The ground floor has also access to the private courtyard.
- Choice of a wide variety of flooring materials and custom design of kitchen and closets.
Apartment on 2nd floor
- Apartment with 3 bedrooms, a bathroom and a WC.
- Open plan area of 85m² with living room, kitchen, dining room and energy-efficient fireplace .
- Living room opening to a terrace of 20m² with sea view.
- Plenty of natural light to all the areas.
- Sunspace which allows ventilation in the summer and passive heating in the winter.
- Choice of a wide variety of flooring materials and custom design of kitchen and closets.




































